Italiano
416.500 €

RESIDENZA FRANCESCA

Appartamento in vendita • Cesate
🏡 RESIDENZA FRANCESCA – NUOVI APPARTAMENTI IN VILLA A CESATE

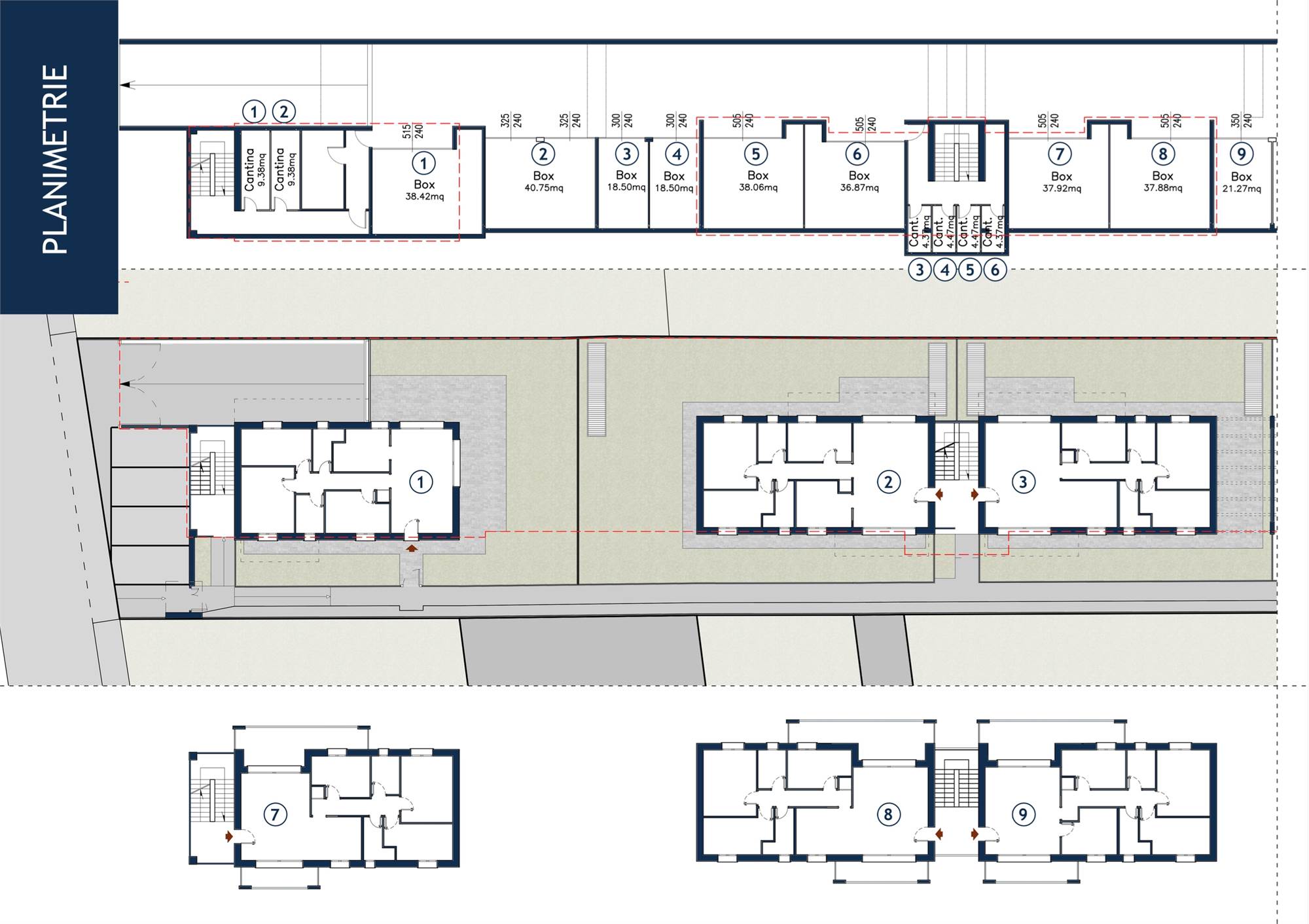
A Cesate, in Via Trieste, nasce Residenza Francesca, un elegante complesso residenziale di nuova costruzione in Classe Energetica A, composto da 6 ville moderne suddivise in 12 appartamenti quadrilocali progettati per offrire comfort, privacy e alta efficienza energetica.

📍 Posizione strategica
La residenza si trova in una zona tranquilla e riservata, a pochi passi dalla stazione ferroviaria, dalle scuole, dai servizi del centro e con comodi collegamenti alle principali arterie stradali verso Milano.

🏠 Appartamenti spaziosi e luminosi – circa 140 mq commerciali
Le soluzioni abitative sono pensate per la vita familiare e offrono ambienti moderni e ben distribuiti:
Ampio soggiorno luminoso
Cucina abitabile o a vista
3 camere da letto
2 bagni finestrati
Cantina
Box doppio di 40mq incluso nel prezzo

🌿 Spazi esterni esclusivi
Piano terra: grandi giardini privati sui tre lati dell’abitazione
Primo piano: ampi terrazzi e suggestivi soffitti in legno a vista, con possibilitĂ  di soppalco personalizzato

⚡ Tecnologia ed efficienza energetica
Gli appartamenti sono realizzati con materiali di ultima generazione e impianti ad alta efficienza:
Riscaldamento a pavimento
Pompa di calore ibrida e caldaia a condensazione
Pannelli fotovoltaici
Ventilazione meccanica controllata con recupero di calore
Tapparelle motorizzate in alluminio
Videocitofono
Predisposizione aria condizionata
Queste soluzioni garantiscono alto comfort abitativo, ottimo isolamento acustico e notevole risparmio energetico.

✨ Personalizzazione degli interni
Le abitazioni sono personalizzabili secondo le proprie esigenze, con capitolato di qualitĂ  e finiture moderne.

đź“… Consegna prevista: Maggio 2026

🏗️ Appartamenti già visionabili in cantiere

đź’° Esempi di soluzione disponibili:
Attico quadrilocale con terrazzo, balcone, tre camere e doppi servizi – €342.500 comprensivo di cantina e possibilità box doppio a 42.000,00 Euro o singolo a 20.000,00 Euro.
Piano terra quadrilocale con giardino su tre lati, portici, tre camere e doppi servizi – €374.200 comprensivo di cantina e possibilità box doppio a 42.000,00 Euro o singolo a 20.000,00 Euro.

📞 Per informazioni, capitolato e visita in cantiere siamo a disposizione su appuntamento al numero 0291676039, via mail info@attrazionecasa.it o via whatsapp al numero 3450481539.
Caratteristiche principali
Codice
V000499
CittĂ 
Cesate
Categoria
Appartamento
Prezzo
416.500 €
Spese condominiali
600 € / anno
Locali
4
Camere
3
Bagni
2
Mq
157
Box
2
Mq Box
40
Posti auto
2
Mq Giardino
240
Piano
Terra
Classe energetica
A
Stato Immobile
In Costruzione
Grado
Signorile
Posizione
Centro
Orientamento
Ovest Est
Lati Liberi
2
Giardino
Privato
Arredi
PossibilitĂ 
Tipo Soggiorno
Doppio
Tipo Cucina
Abitabile
Riscaldamento
Autonomo
Tipo Riscaldam.
Caldaia a Condensazione
Tipo Impianto
Pavimento
Fonte Energetica
Elettrico
Acqua Calda
Autonoma
Infissi
PVC Doppio Vetro
Serramenti
Nuovo
Persiana
Tapparella PVC
Pavim. Giorno
Personalizzato
Pavim. Notte
Personalizzato
Pavim. Cucina
Personalizzato
Pavim. Bagno
Personalizzato
Accesso Disabili
Nessuna Barriera
Accesso interno disabili
Pieno accesso
Isolamento
Presente
Isolamento termico
Cappotto esterno
Isolamento acustico
Isolamento completo
VMC
Si

Accessori: Antifurto, Aria Condizionata, Armadio a Muro, Bagno Handicap, Cassaforte, Cancello Elettrico, Doppi Vetri, Fibra Ottica, Impianto Domotica, Impianto Fotovoltaico, Lavanderia, Pannelli Solari, Porta Blindata, Rete Dati, Ripostiglio, Tapparelle Elettriche, Tavolini Esterni, Veranda, Zanzariere

Distanze
Posizione
Centro200 m
Mezzi di trasporto
Stazione dei treni400 m
Condividi su
Cookie preference