Italiano
Riservato

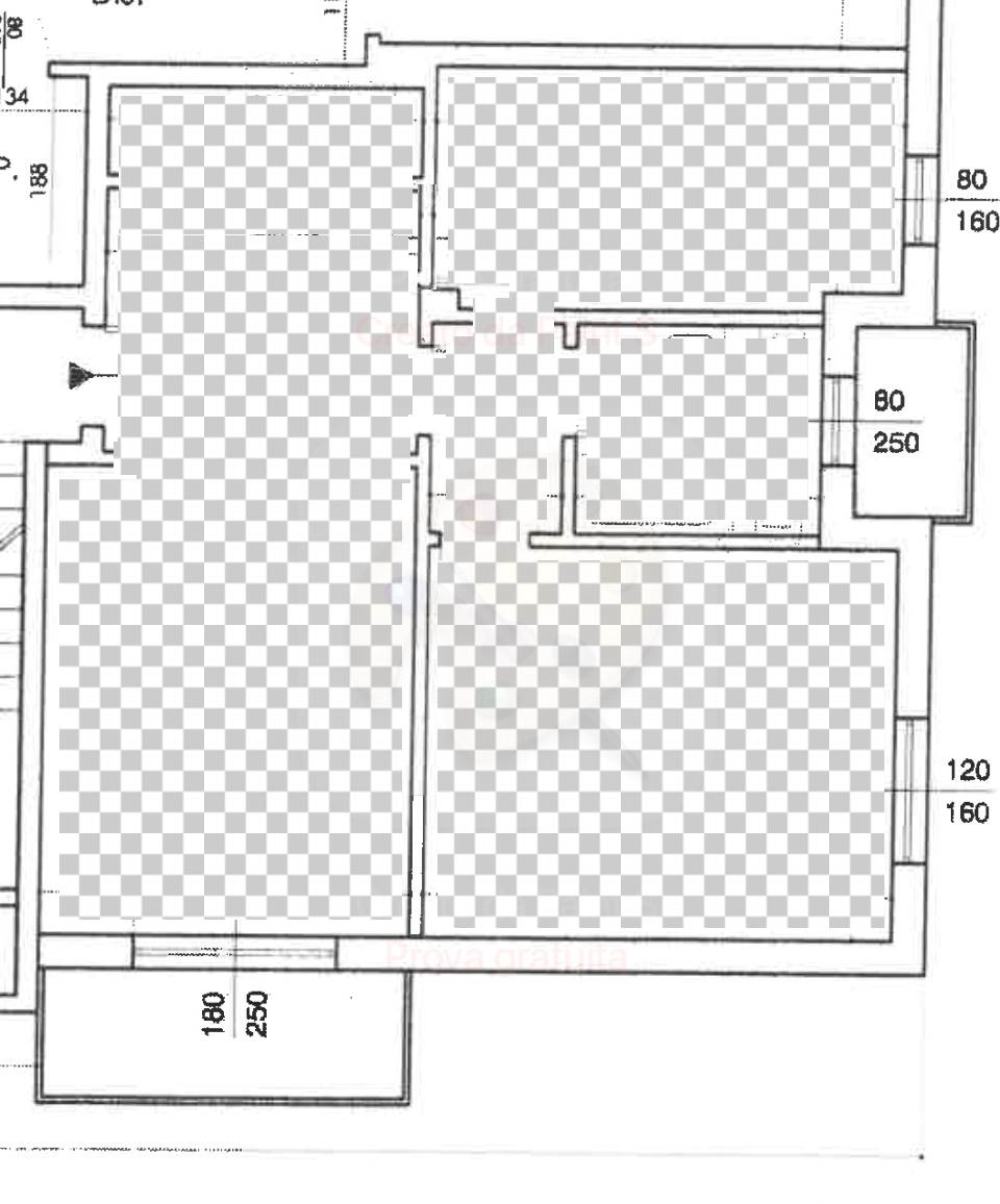
AMPIO BILOCALE

Appartamento in vendita • Novate Milanese - monte bianco, 8
ATTRAZIONE CASA propone in esclusiva: NOVATE MILANESE / VIA MONTE BIANCO 8.

In contesto signorile e riservato degli anni '70, proponiamo in vendita un grande bilocale da personalizzare con possibilità di essere trasformato in trilolocale.

COMPOSTO DA: Ingresso, ampio soggiorno con uscita sul balcone, ripostiglio, cucina, disimpegno, camera matrimoniale e bagno finestrato.

L'immobile si presta a personalizzazioni di ogni tipo ed è possibile la trasformazione a trilolocale. L'immobile gode di una doppia esposizione sud/ovest ed è in una zona riservata ma vicina alla stazione e al capolinea dell'autobus ATM89 che arriva alla metro di Comacina.

Questa abitazione è in discrete condizioni abitative, il riscaldamento è centralizzato, gli infissi sono in alluminio doppio vetro, la porta d ingresso è blindata.

Completa la proprietà un solaio incluso nel prezzo.

Per ulteriori informazioni: Ufficio ATTRAZIONE CASA Via Bertola 2a, tel. 0291676039, info@attrazionecasa.it.
Caratteristiche principali
Codice
V000489
Città
Novate Milanese
Categoria
Appartamento
Prezzo
Riservato
Locali
2
Camere
1
Bagni
1
Mq
74
Balconi
2
Mq Balcone
10
Piano
2
Classe energetica
E
Stato Immobile
Buono
Grado
Signorile
Posizione
Centro
Orientamento
Sud Ovest
Lati Liberi
2
Giardino
Comune
Arredi
Non Arredato
Infissi
Alluminio Doppio Vetro
Serramenti
Ottimo
Persiana
Tapparella PVC
Mappa
monte bianco 8, Novate Milanese (MI)
Condividi su
Cookie preference