Italiano
225.000 €

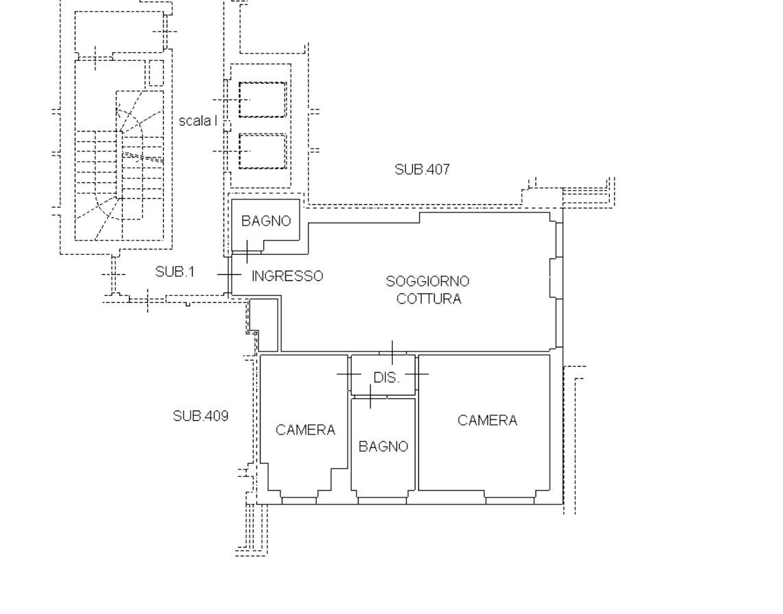
TRILOCALE DOPPI SERVIZI

Appartamento in vendita • Bollate - via Pascoli, 12
ATTRAZIONE CASA propone in esclusiva: BOLLATE / VIA PASCOLI 12.

In contesto signorile e riservato di fine anni '90 in posizione centrale proponiamo appartamento di tre locali con doppi servizi.

COMPOSTO DA: Ingresso, bagno di servizio, soggiorno con cucina a vista, disimpegno notte con 2 camere da letto e bagno padronale.

L'immobile gode di una doppia esposizione ed è in una zona centrale vicina alla stazione di bollate centro.
Questa abitazione è in ottime condizioni abitative, il riscaldamento centralizzato, gli infissi sono in legno doppio vetro, la porta d ingresso è blindata.

Completa la proprietà una cantina inclusa nel prezzo e la possibilità di acquistare un box auto di circa 20 mq a 25.000,00 euro.

Per ulteriori informazioni: Ufficio ATTRAZIONE CASA Via Bertola 2a, tel. 0291676039, info@attrazionecasa.it.
Caratteristiche principali
Codice
V000476
Città
Bollate
Categoria
Appartamento
Prezzo
225.000 €
Spese condominiali
3.600 € / anno
Locali
3
Camere
2
Bagni
2
Mq
83
Box
1
Mq Box
20
Piano
4
Classe energetica
F
Stato Immobile
Ottimo
Grado
Signorile
Posizione
Centro
Panorama
Vista Aperta
Orientamento
Nord Est
Lati Liberi
2
Giardino
Comune
Arredi
Arredato
Tipo Soggiorno
Soggiorno
Tipo Cucina
A Vista
Riscaldamento
Centralizzato
Tipo Riscaldam.
Caldaia
Tipo Impianto
Radiatori
Fonte Energetica
Metano
Acqua Calda
Centralizzata
Infissi
Legno Doppio Vetro
Serramenti
Ottimo
Persiana
Persiana Legno
Pavim. Giorno
Ceramica
Pavim. Notte
Parquet
Pavim. Cucina
Ceramica
Pavim. Bagno
Ceramica
Accesso Disabili
Nessuna Barriera
Accesso interno disabili
Pieno accesso
Isolamento
Presente
Isolamento acustico
Serramenti

Accessori: Armadio a Muro, Ascensore, Bagno Handicap, Cancello Elettrico, Doppi Vetri, Fibra Ottica, Lavanderia, Passaggio Pedonale, Porta Blindata

Distanze
Posizione
Centro100 m
Istruzione
Scuola materna100 m
Scuola elementare100 m
Scuola media500 m
Scuola superiore1 km
Mappa
via Pascoli 12, Bollate (MI)
Condividi su
Cookie preference