Italiano
550.000 €

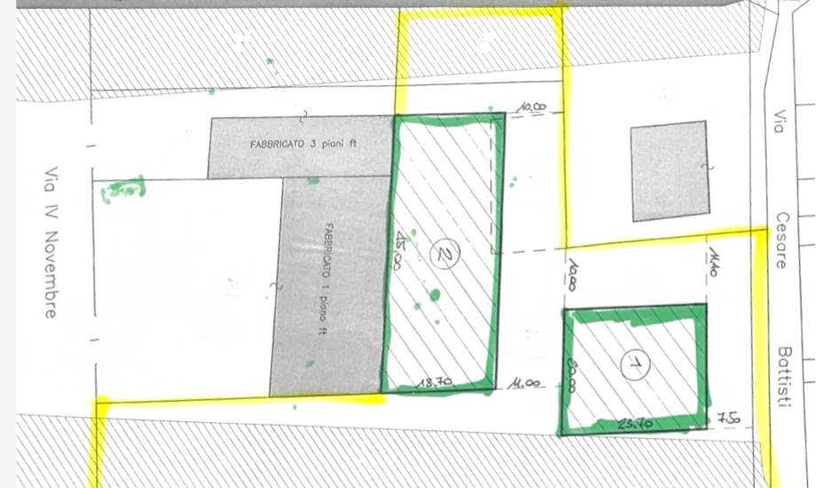
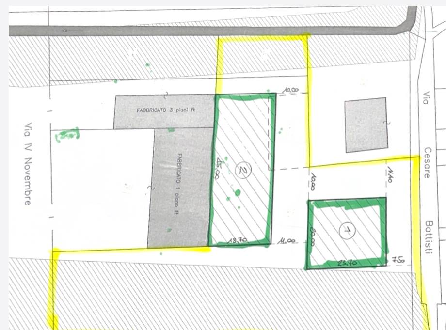
Terreno Edificabile in vendita a Novate Milanese

Terreno Edificabile in vendita • Novate Milanese - cesare battisti
ATTRAZIONE CASA propone in esclusiva: NOVATE MILANESE / VIA CESARE BATTISTI / VIA IV NOVEMBRE

TERRENO EDIFICABILE – OPPORTUNITÀ UNICA! 🌿

📍 Zona periferica tranquilla e in espansione
In vendita terreno edificabile di 4.800 mq con possibilità di costruzione fino a 1.400 mq circa, ampliabili previa valutazione con gli enti competenti.

✅ Destinazione mista: residenziale e commerciale
✅ Ottima accessibilità e visibilità
✅ Ideale per imprese edili, investitori o chi desidera sviluppare un progetto su misura

🏡 Per ulteriori informazioni: Ufficio ATTRAZIONE CASA Via Bertola 2a, tel. 0291676039, info@attrazionecasa.it
Caratteristiche principali
Codice
V000463
Città
Novate Milanese
Categoria
Terreno Edificabile
Prezzo
550.000 €
Locali
4800
Mq
4800
Classe energetica
Non classificabile
Indice Edificabilià
1
Oneri Urbanizzazione
Si
Stato terreno
Urbanizzato
Mappa
cesare battisti , Novate Milanese (MI)
Cookie preference